Home / Portfolio / Misc. Technical Work

Freelance & Misc. Technical Work

This page serves as a home for any projects that don't quite fit into the main portfolio or simply weren't in depth enough to warrant their own dedicated page, such as small freelance jobs or one-off experiments.

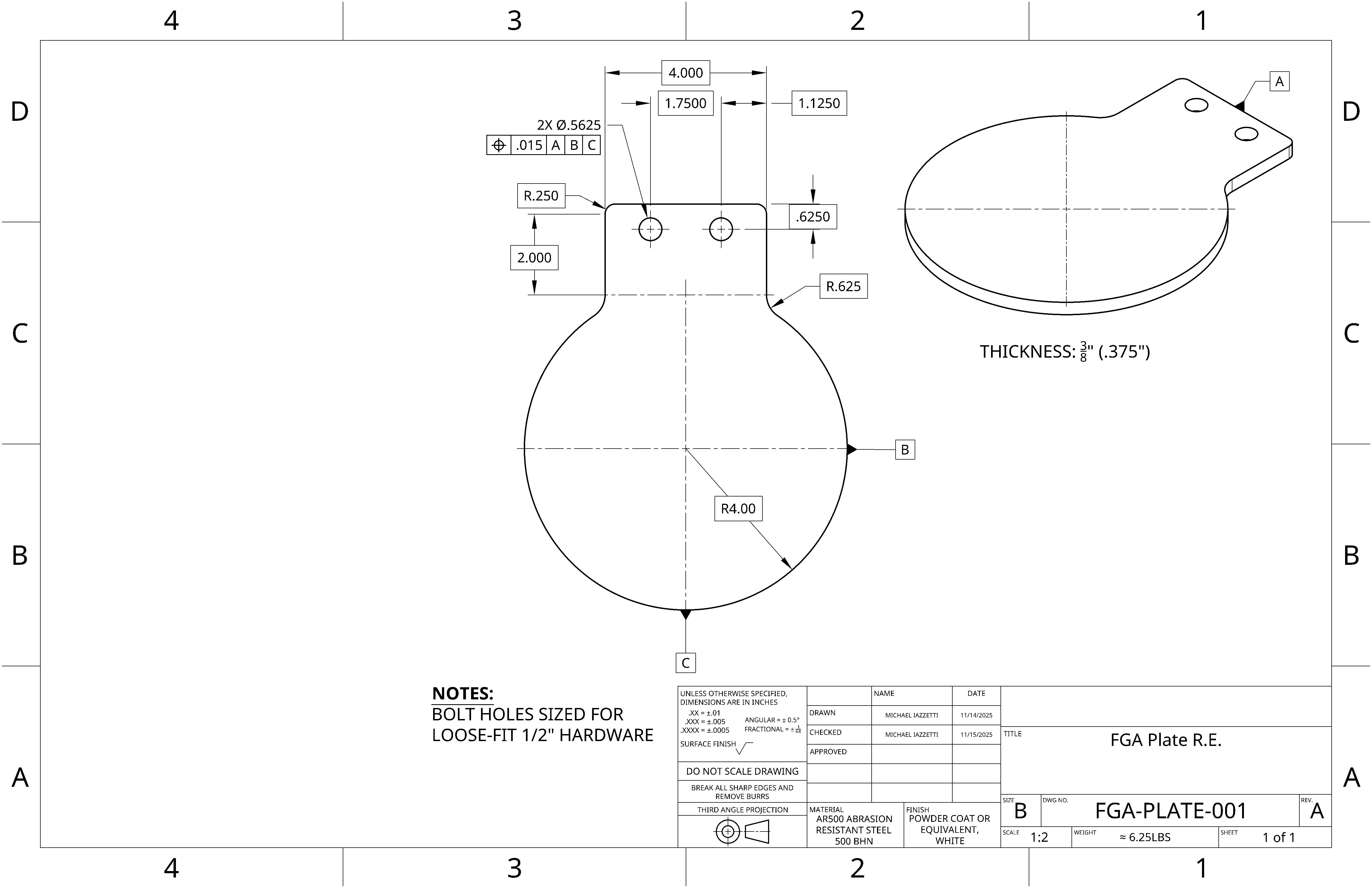
AR500 Steel Plate - Reverse-Engineered Drawing

A small freelance project where I was tasked with reverse-engineering an existing AR500 plate and creating a dimensioned drawing suitable for fabrication. The plate was measured using calipers and a tape measure, and intended dimensions were inferred based on standard practices for similar plates as well as manufacturability considerations. The final deliverable included practical tolerancing, clearly defined & labeled dimensions, and production friendly notes.